SEE ALL PHOTOS

30 Harness Lane$2,495,000For Sale

$2,495,000
For Sale
NEXT
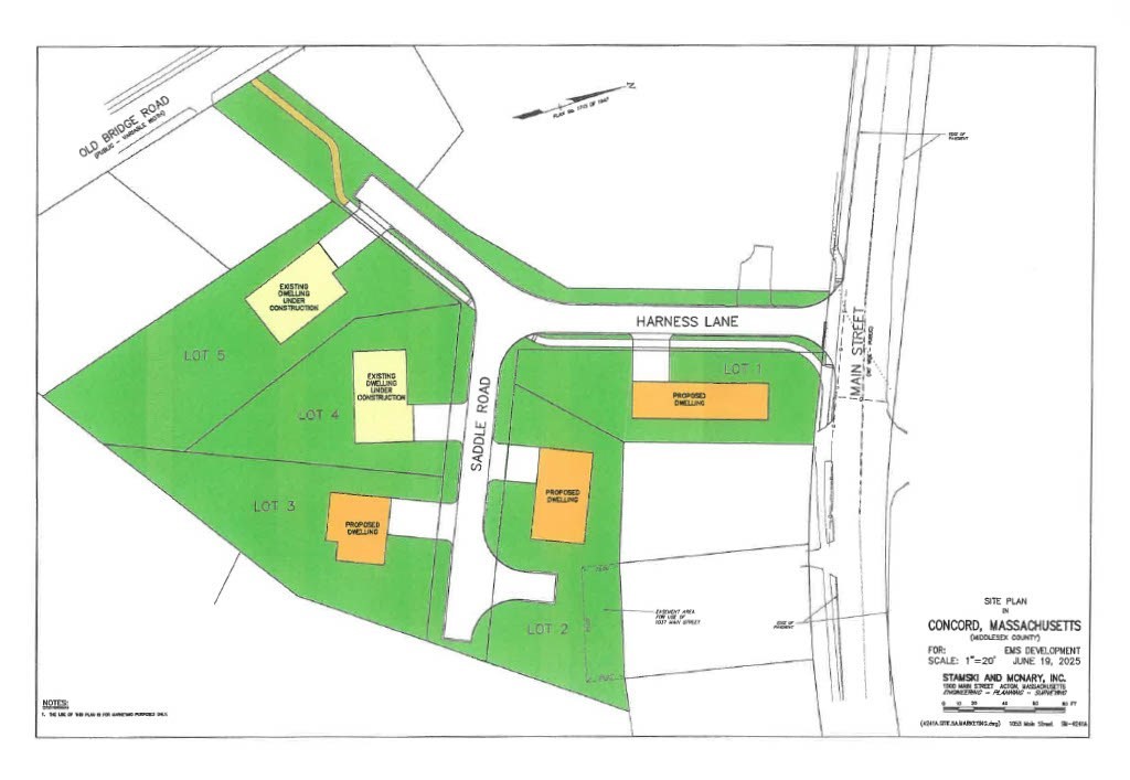
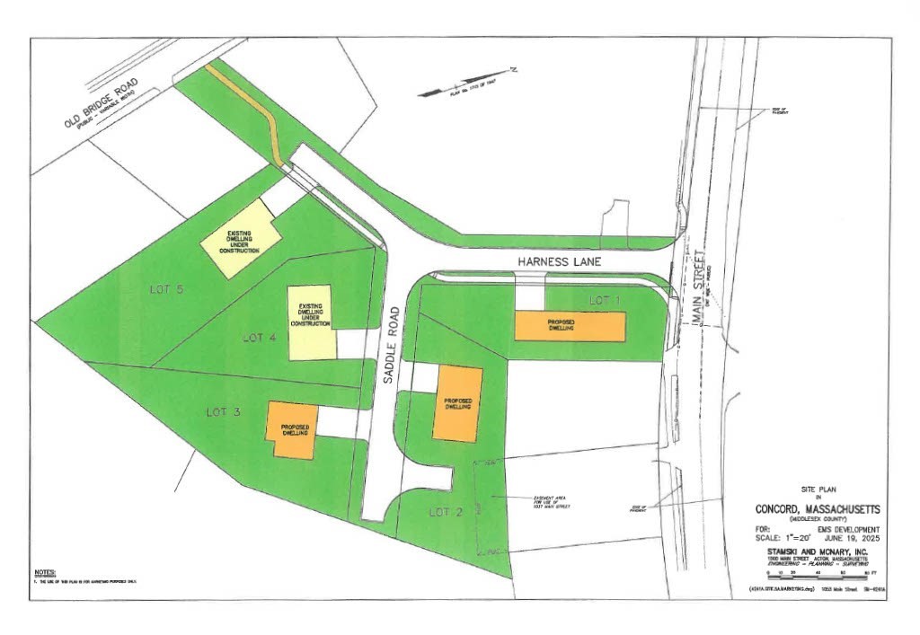
NEW ROAD IF DIFFICULT TO FIND USE GPS 1053 Main St Walk to everything location, shops, restaurants, Bruce Freeman rail trail, Rideout Playground and the commuter rail. The first of 5 homes to be built by EMS Development. Three finished levels offering 5 bedrooms, including a first-floor primary, 4 full and 2 1/2 baths. The heart of the home is a thoughtfully designed chefs' kitchen with Thermador appliances, prep pantry, and a hickory center island. The open floor plan offers a fireplaced family room and dining area with lots of natural light and 9-foot ceilings. The second floor has 4 bedrooms including an en-suite and gorgeous primary with spa like bathroom. The lower level is also complete with a large playroom, workout room and half bath. Move in ready this home welcomes you in time for the holidays.

1/11/2026 1:00PM - 3:00PM EST

5
beds

6
baths

4,681 Sq.Ft. LIVING AREA

0.4 Acres lot

Features & Amenities

Interior

  • total bedrooms5
  • Total bathrooms6
  • full bathrooms4
  • half bathrooms2
  • Laundry room Electric Dryer Hookup, Washer Hookup, Sink, Second Floor
  • Flooring Tile, Vinyl / VCT, Hardwood, Flooring - Hardwood, Laminate
  • Fireplace Family Room
  • APPLIANCES Electric Water Heater, Range, Dishwasher, Microwave, Refrigerator, Plumbed For Ice Maker
  • other interior Features Pantry, Countertops - Upgraded, Wet bar, Home Office, Play Room, Exercise Room, Wet Bar, Internet Available - Unknown

Area & Lot

  • Status For Sale
  • OPEN HOUSE

    1/11/2026 1:00PM - 3:00PM EST

  • Living Area4,681 Sq.Ft.
  • Total Area4,681 Sq.Ft.
  • Lot Area0.4 Acres
  • MLS® ID73429575
  • TypeResidential
  • YEAR BUILT2025
  • Architecture StylesColonial
  • Elementary SchoolWillard
  • Middle SchoolCms
  • High SchoolCchs

Exterior

  • Garage Space2.0
  • water SourcePublic
  • utilitiesfor Electric Range, for Electric Oven, for Electric Dryer, Washer Hookup, Icemaker Connection
  • roofShingle
  • parkingAttached, Garage Door Opener, Paved Drive, Off Street, Paved
  • HEAT TYPECentral, Forced Air, Heat Pump
  • AIR CONDITIONINGCentral Air, Heat Pump
  • sewerPrivate Sewer
  • SubstructureConcrete Perimeter
  • Disability FeaturesNo
  • other exterior FeaturesPorch, Patio, Rain Gutters

Financial

  • Sales Price$2,495,000
  • Zoning res
WATCH VIDEO

Work With Abby

Abby’s attention to detail and extensive knowledge of the area makes her an unparalleled asset for any homebuyer or seller.

Follow Me On Instagram